一、预制总体概况
1、上下分体最早;
2、节段预制为主;
3、未来组合预制;
4、提倡节点预制;
5、防水大难题;
6、成本制约发展。

二、半预制技术

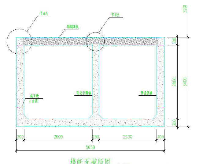
顶板预制或叠合,侧墙现浇,可快速拆模,节省人工和脚手架

代表项目:包头新都市区管廊一标




三、预制节段拼装技术


适合于单舱和两舱管廊,整体节段预制,现场拼装。施工速度快,现场无钢筋、模板、混凝土作业
代表项目:十堰项目、成都玉虹路三舱管廊


四、分块预制拼装技术

适合于多舱或上下两舱断面,断面上分块预制,减少吊重,便于运输和吊装。
代表项目:绵阳管廊项目、广州天河智慧城

施工案例-中国建筑绵阳科技城分片预制装配式管廊施工流程展示
五、暗挖隧道管廊内部结构预制装配技术

施工速度大大增加、施工环境大大改善、施工难度大大降低
代表项目:十堰风神大道等5条隧道管廊
六、叠合装配技术

侧墙和顶板采用叠合结构,适合于多舱管廊,结合了全现浇和全预制的优点
代表项目:哈尔滨、长沙、十堰、景德镇、海口
七、全现浇存在的问题及解决途径




八、叠合装配技术基本思路

叠合装配技术即通过叠合式预制墙板的安装,辅以现浇叠合层及加强部位混凝土结构,形成共同工作的墙板。
九、结构设计理论

1、叠合装配结构的基本设计模型
1)底板采用现浇结构;
2)侧墙及中隔墙采用双层叠合墙结构;
3)顶板和中板采用单层叠合板结构;
4)(同层)侧墙和板的混凝土一次浇筑完成;
5)现浇底板与叠合侧墙的钢筋锚固或搭接、侧墙与顶板或中板处的钢筋锚固或搭接符合《混凝土结构设计规范》GB50010-2010中的要求;
2、现浇底板与叠合墙节点处的设计方法

1)采用螺旋箍筋连接现浇底板和预制墙板的主筋;
2)结合处采用凹槽的方式,一是埋设施工缝出的止
水钢板,不影响叠合墙处的行架筋;二是增大此处的
渗水路径,以满足混凝土自防水的规范要求;三是起
到一定的剪力槽作用。
3)尽量将接缝位置上移,避开大剪力位置。
十、结构受力试验
足尺模型力学性能试验


十堰市北环路管廊叠合装配段足尺模型力学性能试验
十一、施工工艺流程


现浇施工底板


行架筋加工



螺旋箍筋加工

单层板浇筑、翻转

振动台浇筑另一块板


养护、运输、存放

叠合墙安装

叠合顶板安装,钢筋绑扎

混凝土浇筑
十二、预制装配结构防水作法

预制装配混凝土结构以自防水为主:≥C40,P8;
预制节段装配结构:接缝防水为重点,接缝防水构造设计要通过室内和现场试验验证(采用单口水压试验方法;试验压力为基底埋深加1米;每个检验批取一个接头);
叠合预制装配与分块预制装配一般以连续后浇混凝土为主;
目前倾向取消结构外包防水,只在接头处设计有附加层;
十三、30米标准段各种工艺对比

联系地址:德州市经济技术开发区红都路956号
联系电话:0534-2109518
传真:0534-2109698
邮箱:[email protected]
周经理:18963003578

微信扫一扫
WECHAT SCAN