
海天机电HTLM03型多功能卧式立模生产线是公司自主首创研发的第2代多功能卧式立模生产线升级版。该产线使用多项拥有完全自主知识产权的海天机电zhuanli技术,是国内较早的使用卧式立模主机自动行走的产线之一。
多年的技术升级创新使该产线具有高度灵活、高度安全、设备稳定性高、成型精度高、流转速度快等优势,整线质量可靠性价比超高,投资回报率高,是客户投资轻质墙板生产线的极佳选择之一。
生产板材
左右滑动查看更多
可生产板材:GRC(玻璃纤维增强水泥)空心板、蒸压陶粒混凝土板、发泡水泥板、菱镁板、 硅镁空心板、EPS复合轻质墙板、聚苯颗粒水泥芯板等。
可实现板材孔型:实心板、空心板(单排圆孔、双排圆孔、椭圆孔、方孔)。
生产出的各类轻质隔墙板在保温、抗压强度、隔音、防火等方面的性能标准明显优于国家现行标准。
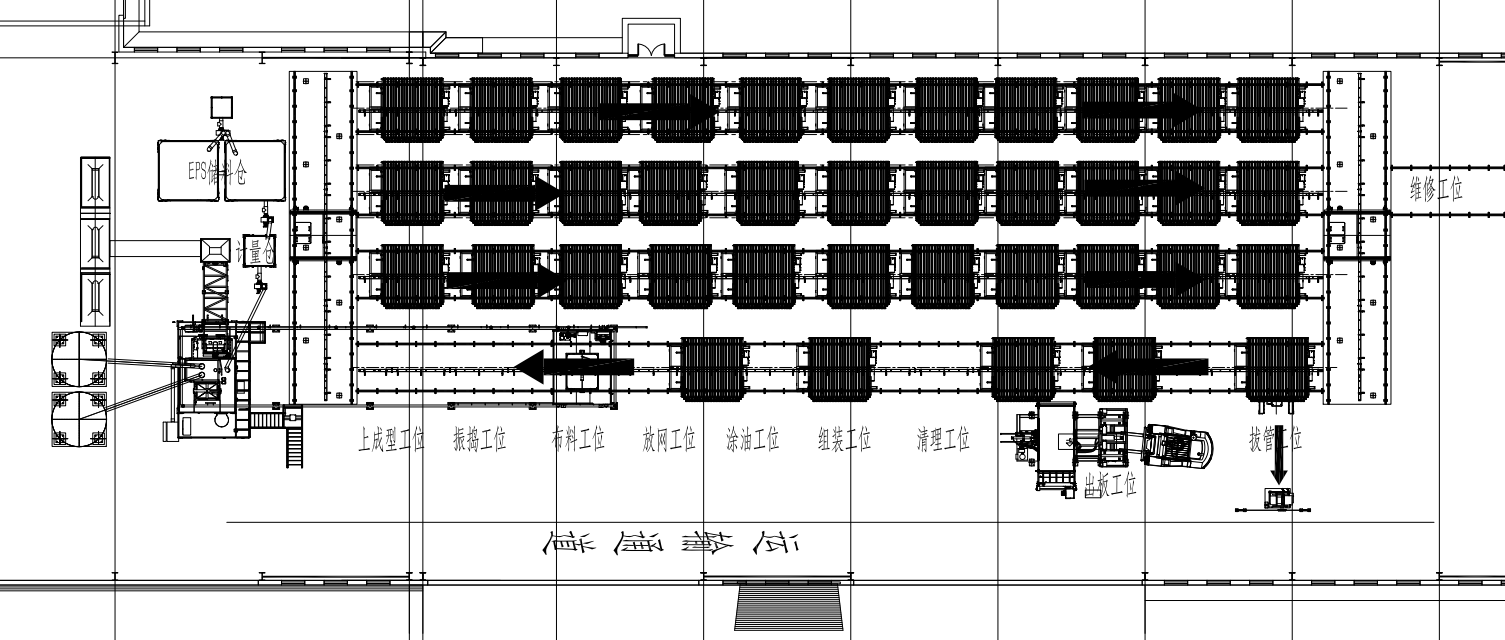
生产线布局

1. 可充分考虑客户生产车间、当地气候和原材料等,因地制宜更改布局和工艺等。
2. 可根据产能需求灵活布局生产线及选择设备数量。
3. 可增加养护窑进行养护,部分板材可一天双班或者多班生产,理论双班年产量:80-100万㎡。
4. 模车遥控移动,动作简单,便于操作。
5. 整体流转便捷,利于工人操作,单机自带开合模功能。
6. 可选配自动喷油机、自动清理机等自动化设备,提高自动化能力。
产线设备介绍
01
卧式立模主机

设备稳定性高:通过有限元分析和工艺手段,有效控制模车变形;
自动化程度高:立模主机自带开合模液压系统,自带遥控,可控制所有动作;
模具头:双层模具头,能够独立站立,可垂直放置,密封性更高;
行走灵活:可前后行走,灵活行走,灵活布局。
02
搅拌配料系统

自动配料:对水、粉料、添加剂、骨料进行全自动配料、搅拌和放料。
快速高效:双轴双电机搅拌,时间6-8分钟;
洁净环保:搅拌机带脉冲除尘器功能,避免扬尘污染;
自动原材料配比:可根据批次板长自动进行原材料配比。
03

精准布料:垂直模具方向,宽口设计,变频行走,多口布料;
速度可调:液压控制阀门开合,出料速度可调;
操控简单:设备配置遥控功能,简单耐用;
专业设计:针对不同的物料,更改部分下料细节,工艺更稳定。
04
摆渡车

自动控制:运行过程全自动,无需人工控制,可全程PLC控制,自动定位,自动启停;
安全可靠:专用重载软启动电机(缓起缓停),极限负载30吨。
05
固定式出板翻转机

互锁控制:每个相连动作均进行互锁,避免人为操作失误;
出板量大:一次性出板10块,全部完成翻板作业,可直接由叉车叉走或打包;
整体结构优化,耐用程度高,不易变形。
06
拔管机

拔管力大:10吨拔管力,增强拔管插管的稳定性(区分5吨和3吨拔管),每次可拔管一排;
芯管创新:采用外包塑内钢芯管模式。
07
自动喷油机(可选配)

创新:自动喷油,节省人工,雾化效果好;
多型号可调:采用机械调节方法进行板材多规格型号(100/200)的喷涂;
操作便捷:采用单独控制,密闭空间,喷油更加便捷;
08
自动清理机(可选配)

创新:自动清理,密闭式环境,配除尘器,节省人工;
多型号可调:采用机械调节方法进行板材多规格型号(100/200)的清理;
操作便捷:自动控制,可视化操作,清理更加便捷;
联系地址:德州市经济技术开发区红都路956号
联系电话:0534-2109518
传真:0534-2109698
邮箱:[email protected]
周经理:18963003578

微信扫一扫
WECHAT SCAN