0 前言
钢结构具有轻质、高强、抗震性好、布局灵活、构件截面尺寸小、易装配、施工期短、使用面积高等优点,且利于工业化生产、标准化制作等优点。国外装配式钢结构住宅发展较早,以其显著的优点在住宅建筑中占据了相当大的比例,并且已经形成了完整配套的住宅产业化体系。发展至今较为成熟的装配式建筑体系包括意大利BSAIS工业化建筑体系、瑞典工业化建筑体系、美国的LSFB轻型钢框架建筑体系、日本的给水住宅株式会社的Sekisui和Toyotahomes 住宅体系等、美国的Kaiser Bolted Bracket和Con Xtech Con X体系。国外的装配式住宅发展历经时间长,设计体系较完善,施工技术与配套设备发展较成熟,应用推广十分广泛。虽然我国钢结构住宅发展起步较晚,但目前已初步实现了从单一结构形式向专用建筑体系的发展,并呈现出了体系化、系统化的特点。海天机电轻质墙板生产线,墙板设备,隔墙板设备,复合墙板设备,陶粒墙板设备,石膏墙板设备,发泡水泥墙板设备。
随着我国装配式建筑的推广和钢结构建筑产业政策密集出台,国内装配式钢结构产业迎来了前所未有的发展机遇。钢结构建筑中预制夹心保温外挂墙板(以下简称外挂墙板)的装配化是衡量建筑装配率的重要指标,但目前仍存在着许多技术难点,例如:现有墙体材料规格未实现标准化、节点未实现规范化、现场装配效率低(需考虑结构材料和体系)。针对上述问题,本文旨在通过预制夹心保温外墙挂板的设计生产,来实现其在钢结构住宅建筑中的应用。
1 设计技术研究
1.1 构造设计
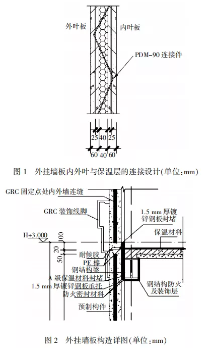
构造设计为60 mm外叶板+40 mmXPS保温层+60 mm内叶板,见图1。内、外叶板与夹心保温板之间通过PDM-90连接件连接。墙板外侧采用GRC装饰线脚实现建筑外立面线条造型设计效果。上下墙板拼缝防水采用材料防水为主、构造防水为辅的防水方案,在墙板接缝处设置企口坡度,并在企口两端用PE棒封堵,企口接缝外侧用耐候胶处理,防止水汽进入板缝向室内流动渗透,墙板上下拼缝内侧用A级保温材料封堵,保温材料上下端采用1.5 mm厚镀锌钢板封堵,防止水汽进入腐蚀钢结构主体。海天机电轻质墙板生产线,墙板设备,隔墙板设备,复合墙板设备,陶粒墙板设备,石膏墙板设备,发泡水泥墙板设备。
外墙内装饰内外侧均采用防火密封材料处理,钢结构梁外包20 mm厚防火饰面板,墙板内侧保温封堵材料下端镀锌钢板承托与钢结构梁连接处采用防火密封材料进行层间防火封堵和板缝防火封堵。图2为外挂外墙板构造详图。

1.2 连接节点设计
外挂墙板通过钢连接组件与钢结构梁采用四点简支连接,外挂墙板所受水平荷载主要考虑自身重心偏移造成的水平力、风荷载以及水平地震力。节点采用上拉下撑的连接形式,外挂墙板上部两个节点为平面外约束点,通过可调角码实现墙板上下、左右安装位置调节,下部两个节点分别为水平滑动承重铰支座和承重铰支座。外挂墙板下部节点通过预埋T型连接板与连接组件连接,为提高连接板的水平向抗拉拔能力和竖向抗滑移能力,T型连接板端部与槽钢焊接后预埋在外挂墙板内;在T型连接板与角钢连接端设有调节螺栓,可调节螺栓和垫板调节外挂墙板安装标高。外挂墙板上部节点通过预埋螺栓套筒将连接组件与墙板固定,为提高上部节点的抗拉拔能力,套筒预埋端部设有水平向锚固钢筋。连接构造详图如图3所示。

2 外挂墙板生产技术研究
2.1 混凝土的配合比设计
(1)普通混凝土
外挂墙板内外叶混凝土板强度等级为C30,为保证外挂墙板质量,首件制作时对同配合比混凝土进行力学性能、工作性及耐久性能试验,试验配合比及试验结果见表1、表2。

(2)轻骨料混凝土
由于普通混凝土表观密度较大,生产的构件自重大,生产脱模、吊装运输、现场安装的成本和难度也随之增加,加之外墙挂板属于非承重的外围护结构,不承担主体结构的荷载,对安装节点的设计方面也会增加难度。因此,针对大面积外墙挂板,为了减轻其自重,缓解运输和安装的压力,本文根据JGJ 51—2002《轻骨料混凝土技术规程》规定,通过试验研究,设计了密度1 600级,强度等级LC30的轻骨料混凝土,其配合比及试验结果见表3、表4。为保证轻骨料混凝土构件表面光洁平整,在振捣过程可采用插入式振动器振捣混凝土时,其插入的距离以30 cm为宜,混凝土应振到停止下沉,无显著气泡上升,表面平坦一致,呈现薄层水泥浆为止,不得过振以避免轻骨料上浮。

2.2 生产工艺及质量控制研究
2.2.1 生产工艺
外挂墙板的生产工艺流程见图4。

2.2.2 质量控制
(1)外挂墙板外观质量和外形尺寸要求较高,墙板外表面应光洁平整,不得有疏松、蜂窝等缺陷。墙板模板采用平浇,整个结构由底模、外侧模和内侧模组成,此方案能够使墙板正面和侧面全部与模板密贴成型,使墙板外露面能够做到平整光滑,保证墙板外观质量。夹心保温板连接件采用Peikko公司生产的桁架式不锈钢连接件。海天机电轻质墙板生产线,墙板设备,隔墙板设备,复合墙板设备,陶粒墙板设备,石膏墙板设备,发泡水泥墙板设备。
(2)脱模应严格按照顺序拆除模具。脱模起吊时,同条件养护混凝土立方体抗压强度应根据设计要求确定,且不宜小于15 MPa,运输、起吊强度不应低于设计强度的70%。海天机电轻质墙板生产线,墙板设备,隔墙板设备,复合墙板设备,陶粒墙板设备,石膏墙板设备,发泡水泥墙板设备。
(3)外挂墙板在浇筑过程中容易产生表面小气泡,拆模时混凝土容易有小损伤。对缺棱掉角、表面气孔等外观缺损应进行修补。海天机电轻质墙板生产线,墙板设备,隔墙板设备,复合墙板设备,陶粒墙板设备,石膏墙板设备,发泡水泥墙板设备。
3 工程应用
3.1 工程概况
上海浦东新区宣桥05-02地块项目位于浦东新区惠南新市镇。其中,4#楼全部采用钢结构形式,总建筑面积达6 036 m2,建筑高度达43.60 m,建筑层数为14层。外围护结构采用以下两种墙板形式:①80 mm预制外挂墙板加轻钢龙骨、内侧装饰面板采用双层纸面石膏板的内保温墙板;② 60 mm外叶板+40 mmXPS保温层+60 mm内叶板的夹心保温外挂墙板。根据现行规范,夹心保温墙板混凝土厚度不小于60 mm,本项目中将内叶墙与外叶墙同厚,均为60 mm,与本项目其余楼号相比,建筑外墙厚度减少120 mm,提高了住宅得房率。海天机电轻质墙板生产线,墙板设备,隔墙板设备,复合墙板设备,陶粒墙板设备,石膏墙板设备,发泡水泥墙板设备。
根据结构布置,标准层每层转角凸窗由于体积过大,采用普通混凝土会出现构件自重过大,导致运输和吊装困难。因此,在本工程4#钢结构建筑中转角凸窗(见图5)及其他楼的外饰面竖向装饰条(见图6)采用轻骨料外挂墙板,构件种类共27种。

工程实际应用过程中装配式构件表面光滑,无陶粒上浮现象,施工振捣顺利。轻骨料混凝土的研发配制及在钢结构构件中的应用大大降低了结构预制构件自重,从而减轻了结构自重、提高了吊装效率。海天机电轻质墙板生产线,墙板设备,隔墙板设备,复合墙板设备,陶粒墙板设备,石膏墙板设备,发泡水泥墙板设备。
3.2 力学性能试验验证
为了保证外挂墙板在风荷载和地震荷载作用下建筑物结构的安全性,开展了墙体静力试验,对外挂墙体在平面外荷载作用下的开裂荷载、变形等性能开展研究。海天机电轻质墙板生产线,墙板设备,隔墙板设备,复合墙板设备,陶粒墙板设备,石膏墙板设备,发泡水泥墙板设备。
按照工程实际应用外挂墙板1∶1制作,墙板尺寸为3 000 mm×2 980 mm,厚度为160 mm,构造设计为60 mm外叶板+40 mmXPS保温层+60 mm内叶板。试验设计墙板水平放置于两个混凝土支座上,通过支座上预埋钢管模拟钢梁,试验板中预埋连接件与支座预埋钢管的连接节点按照实际工程应用的连接方式连接。通过外挂墙板表面水平堆载模拟风荷载和地震荷载,1~11 级采用堆砂法,从12 级开始采用堆配重块加载,图7为试验加载示意图及照片。

试验结果表明:
(1)支座与墙板连接良好,未出现预埋件拔出和焊缝失效现象。
(2)开裂后下层钢筋未达到钢筋屈服应变;连接件弦杆和腹杆加载至最/大应力时应变均小于其屈服应变。
(3)实测墙体开裂荷载为平面外荷载设计值的5.8倍,能很好地满足抗裂要求。
(4)墙体的抗弯刚度大,满足正常使用阶段变形要求。
综上,该项目四点简支外挂墙板在平面外均布荷载下刚度大、承载力高,具有较大的安全储备,满足工程设计要求。海天机电轻质墙板生产线,墙板设备,隔墙板设备,复合墙板设备,陶粒墙板设备,石膏墙板设备,发泡水泥墙板设备。
3.3 应用效果
目前本工程主体结构已完工,外墙挂板已安装完成(见图8),研发的外墙挂板整体技术在实际工程中应用效果良好。

4 结语
(1)研发了适用于钢结构建筑的轻质体薄的预制夹心保温外挂墙板,在保证结构可靠和正常使用的基础上有效提高了住宅得房率。
(2)轻骨料混凝土的研发配制及在钢结构构件中的应用大大降低了预制构件的自重,使得中小型吊装设备可以满足较大构件的吊装要求,提高了吊装的效率,减轻了结构自重,具有良好的经济和社会效益。海天机电轻质墙板生产线,墙板设备,隔墙板设备,复合墙板设备,陶粒墙板设备,石膏墙板设备,发泡水泥墙板设备。
(3)轻骨料混凝土配制技术、预制外挂墙板连接技术、生产工艺以及质量控制技术在实际工程中的成功应用可为其进一步推广应用提供参考。海天机电轻质墙板生产线,墙板设备,隔墙板设备,复合墙板设备,陶粒墙板设备,石膏墙板设备,发泡水泥墙板设备。
联系地址:德州市经济技术开发区红都路956号
联系电话:0534-2109518
传真:0534-2109698
邮箱:[email protected]
周经理:18963003578

微信扫一扫
WECHAT SCAN