异形PC构件通常指体积较小、形状不规则的混凝土预制构件。异形预制构件在脱模起吊、运输起吊时,易因起吊点、吊钉载荷、吊装方法等设置不合理,而造成吊装困难,甚至预制件损坏;在现场安装时,常由于吊装误差偏大,造成预制件之间拼缝宽度不一致、相邻预制件的平整度超差、垂直度超差等。
为解决异形PC构件吊装偏差问题,本文结合某工程实例,针对项目采用的预制平窗(凸窗)、预制阳台异形预制构件,主要从吊钉设置、吊装方法及吊装精度控制等方面对吊装技术进行分析。为类似工程项目预制构件吊装提供参考。
吊点设置
异形预制构件极易因吊点设置不合理而偏心起吊,造成预制构件损坏。在浇筑混凝土前,需合理布置起吊点,并预埋规定荷载的吊钉或吊环,之后进行起吊工作。
对于起吊点的位置,首先需要找到异形预制构件重心,根据重心位置及起吊高度,确定吊钩合力作用点方向,从而合理设置吊钉预埋位置,并建立相关数据,标志在预制构件外形尺寸深化图中。
吊装系统设计
对于平窗、凸窗外墙预制构件,采用“—”型吊梁起吊,吊链采用两爪吊链,吊链与吊梁的水平夹角不宜小于60°,确保预制构件在起吊过程中能够垂直起吊,保证吊装过程的稳定性和安全性,如图所示。
平窗、凸窗外墙吊装示意图
对于阳台预制构件,采用“□”型吊架起吊,吊链采用四爪吊链,吊链与吊架的夹角同样不宜小于60°[5],确定阳台预制构件垂直起吊,保证吊装稳定性和安全性,见图。
预制阳台吊装示意图
吊链的型号须根据预制构件的重量及相应吊装构配件的参数进行设计计算。
吊装精度控制
预制构件吊装就位前,需对预制构件水平度、垂直度及平面位置进行精细调节,保证预制构件准确就位。
平、凸窗预制构件精度控制
1、水平度(标高)控制
窗、凸窗预制构件吊装就位时,用水准仪测出预制构件搁置部位的楼板面标高,与设计吊装搁置位置标高对比,通过设置于预制构件底部的钢垫板进行水平调节,直至调节到设计标高。预制构件在矫正过程中,水平度仍不能满足要求,需通过千斤顶及钢垫板进行调节。
如图所示,用螺栓将钢垫板与预埋接驳器连接,然后用千斤顶顶钢板进行调节,在钢垫板与预制构件底缝隙内嵌填钢垫块,直至水平度能满足要求。待预制构件与主体结构完成连接并达到设计强度后,通过千斤顶顶出钢垫板,取出钢垫块。
千斤顶调平
2、垂直度控制
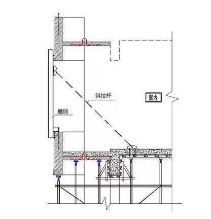
预制构件上部通过2根斜拉杆(一般应设置于预制构件重心点偏上位置)与楼板连接,进行微调,直至垂直度满足要求后,在预制构件下部设置2个“L”形脚码,用螺栓使其与现浇楼板连接固定。
3、面(左右、前后)控制
预制构件出厂前,在预制构件上弹出控制线;现场起吊前,在楼面上弹出所需的左右、前后控制线;吊装就位时,根据所有标志的控制线进行微调,从而保证保证预制构件在设计位置准确就位。
阳台预制构件精度控制
1、水平度(标高)控制
阳台预制构件水平度控制主要通过钢管支撑架的调节杆来进行调节。预制构件就位前,先将阳台预制构件上搁置的钢管支撑架顶部调节杆预调至设计高度,如水平度不满足要求,继续调整钢管支撑架,直至水平度满足要求。因阳台为水平构件,水平度调平后,垂直度自然满足要求。
2、平面(左右、前后)控制
阳台预制构件左右、前后控制主要是通过阳台外侧三根槽钢(长度方向一般两根,宽度方向一般一根)调节。
如图所示,预制构件起吊前,将三根槽钢固定在下层阳台预制构件上,并将长度方向上的两根槽钢用钢管连接形成整体,然后与阳台的钢管支撑架连接固定,确保水平方向不移动。阳台预制构件起吊就位时,阳台两面紧靠槽钢缓慢下降至设计位置。
阳台精度控制
联系地址:德州市经济技术开发区红都路956号
联系电话:0534-2109518
传真:0534-2109698
邮箱:[email protected]
周经理:18963003578

微信扫一扫
WECHAT SCAN