作者:林树枝

专家简介:
林树枝,工学博士,教授级高级工程师。现任厦门市交通运输局巡视员、总工程师。住房和城乡建设部“全国超限高层建筑抗震设防审查专家委员会”成员,中国建筑学会建筑结构分会常务理事,中文核心期刊《土木工程学报》编委。
一.
基于建筑产业现代化的装配式建筑发展
建筑业的转型升级离不开建筑产业现代化。建筑的装配式建造是建筑产业现代化的一种实现方式。其他建造模式,只要是符合产业现代化的要求、具备产业现代化的特征,也可以与装配式建造模式相结合,同步推进。
1、混凝土的现场浇捣方式依然还是一种现代化的作业方式。混凝土在工地现场搅拌已基本被淘汰,混凝土浇筑方式全部改由工厂集中搅拌、车辆运输、再现场泵送。从生产、运输、泵送,再到现场浇捣,已全面实现工厂化、机械化。

与现场搅拌相比,没有砂、石子、水泥等原材料堆放及废水排放等环境污染,也解决了现场搅拌时工人劳动强度高、劳动效率低等问题。直至今天,混凝土(预拌+泵送)的现场浇捣方式,仍然是一种现代化的作业方式。

2、现浇钢筋混凝土结构最受诟病的问题并不在于混凝土的浇捣环节。现浇钢筋混凝土结构,现场手工作业的占比仍然较大。现场需要大量的场地堆放钢筋、模板、支撑,需要大量的工人进行钢筋绑扎、模板支撑。

工人需要高空作业,日晒风吹雨淋,施工安全风险大。除非钢筋笼制作、钢筋网绑扎、模板制作可以移至工厂,再由工厂集中配送,否则,现浇钢筋混凝土结构的突出问题就永远得不到解决。

3、钢筋混凝土结构的预制或现浇,并不是一对矛盾,完全可以互为补充。把现场需要大量进行钢筋绑扎、模板支撑的部位,拆分成预制构件,转移到工厂制作,再运送到现场吊装就位。对于钢筋绑扎量小,或不需要模板支撑的部位,仍宜采用现场混凝土泵送浇筑方式。例如,预制叠合楼板,下皮的预制板兼做模板,上皮再叠合现浇层。同理,还有预制叠合梁、预制叠合墙板、预制空心柱等。

叠合楼板,可省去大量的现场钢筋绑扎和模板支撑工作量。现浇层叠合后,叠合楼板的刚度与传统现浇楼板的刚度一致,与周边梁或墙体连接牢固。

需要更新观念的是,要用建筑产业现代化的理念来统筹装配式建筑的发展。凡是符合产业现代化要求、具备产业现代化特征的任何建造方式,只要能“两提两减”,即提升质量、提高效率、减少用工、减少污染,都应该加以应用,协同发展。
钢筋桁架楼承板是楼板装配化的典型代表。钢筋桁架楼承板将钢筋混凝土楼板中的钢筋与施工模板组合为一体,施工阶段能承受湿混凝土自重及施工荷载,在使用阶段,钢筋桁架与后期在现场现浇的混凝土共同工作,共同承受使用荷载。后浇的混凝土采用“预拌+泵送”,仍具有工厂化机械化等建筑产业现代化的特征。

钢筋桁架采用自动化生产设备在工厂生产,模板通过连接件与钢筋桁架连接,可拆装,重复使用。
钢筋桁架楼承板将钢筋与模板工程全部移到工厂进行,可显著减少现场的钢筋绑扎和模板支撑工作量,大幅度减少现场作业工人,明显加快施工进度,真正实现“两提两减”。因此,钢筋桁架楼承板的装配式铺设,应计入装配率。

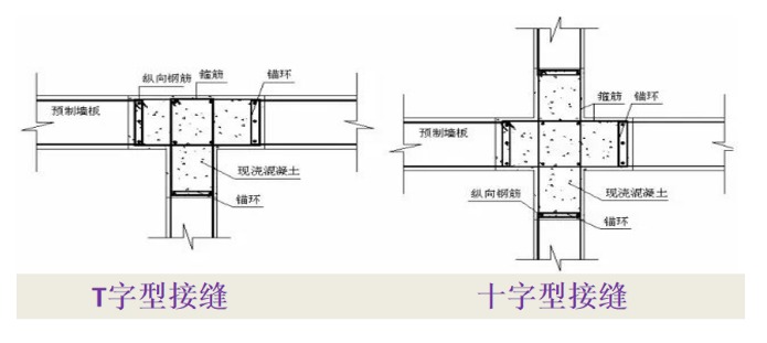
4、预制与现浇的结合,更有利于装配式建筑的发展。由于受道路条件及运输吊装能力的限制,预制构件的尺寸并不能太大、重量也不能太重,把手工作业量小、方便混凝土泵送浇筑的部位仍留在现场进行,一方面可减少预制构件的重量,降低预制构件的制作、运输、吊装工作量,另一方面,也并没有降低工厂化、机械化的总体占比。特别是在预制构件的连接部位,采用现场浇筑的方式,更有利于构件之间的可靠连接。
水平和竖向接缝必须连接可靠,采用现浇连接方式,更能保证在荷载与地震作用下结构不出现破坏,不发生连续性倒塌。

二.
预制装配式混凝土结构的预制率不是越高越好
根据《装配式混凝土结构技术规程》JGJ1-2014,剪力墙体系预制与现浇需要交叉作业,施工效率并不高,水平向连接、关键部位竖向连接要靠现浇,因此,不能过分追求预制率。

预制率越高,建造成本增大越多;预制率高,运输和吊装的难度加大;预制率高,综合效益并不明显。
砼框架,预制梁柱的节点连接相对容易,技术成熟,预制率可以高;砼剪力墙结构预制构件的连接难度较大,竖向受力墙体采用预制装配时,应充分评估预制墙体连接的可靠性。

剪力墙结构的竖向受力墙体,一段直墙,人为切成现浇段和预制段,增加了施工难度和连接工作量。在门窗洞口处,情况更复杂。因此,剪力墙结构的竖向受力墙体,当构件拆分后现场连接的难度增加较多时,宜采用现浇。

不能盲目追求主体结构的预制率。预制率越高,现场的连接量越大,对材料、机具和操作人员的要求更高,若连接不好,就容易出现安全隐患。

预制率高一点,还是预制率低一点,并不是装配式建造模式与传统建造模式的本质区别。装配式建筑也可以有一定比例的现浇。只要现浇 和预制的结合能有利于“两提两减”,能相互促进,都可以为我所用。能抓住老鼠的猫就是好猫。
剪力墙结构的预制部位,可集中在叠合梁、叠合楼板、预制楼梯、预制阳台、预制内隔墙、预制外挂墙板(外墙饰面在工厂与预制件同步完成)等部位,这样可省去楼层支模和外脚手架。

凡在现场现浇时,费时、费力、费工的部位,例如楼梯、飘窗等,宜尽量采用工厂预制。


三.
钢结构构件的现场连接宜采用螺栓连接替代焊接
国内钢结构构件现场连接大部分采用焊接。偏爱焊接的主要原因是成本低,仅需要一点电费,一点气体焊丝,且国内有便宜的焊工。

但现场焊接的难度比栓接要大很多,特别是现场安装,焊工需背负一台很大的焊机高空作业,存在较大的施工安全风险,而且高空焊接可能会焊接不好,还会影响钢结构节点的连接质量。

现场全焊接或栓焊法连接,质量难保证,工期长,劳动强度大,施工安全风险高,焊接时钢铁融化再结合,焊后收缩,变形难控制。没有办法实现“两提两减”,违背了装配式建筑的初衷。

钢结构构件的螺栓连接,受力合理,技术可靠,现场作业量少,施工工人也少,更符合装配式建筑的特点,构件在工厂精密制孔,节点连接精度高。从全寿命周期看,未来还装拆方便,长期效益明显。

什么是真正的装配式钢结构建筑?就是钢结构构件的制作工厂化,在工厂进行钢板剪裁、加工、焊接(工厂焊接,可以确保焊接质量,探伤检查合格后再出厂),制作成构件并运至工地,现场安装时,不再进行焊接或尽量减少现场焊接,连接方式主要采用高强螺栓装配。这是钢结构建筑是否真正实现装配化的重要特征。

在工厂进行钢结构焊接。一些复杂节点,需采用焊接才方便制作,这些需要焊接的复杂构件,尽量移至工厂内进行。通过工业化,用机器换人,进一步降低工人的劳动强度,提高复杂构件制作的精准度。

在现场采用螺栓连接。现场栓接的前提是钢结构构件需精密制作。目前,在工厂进行钢结构构件的精密制作已没有障碍。机器人全自动钢板切割、机器人全自动焊接、机器人全自动钢板打孔、数控钢板焊接、激光钢板切割打孔,误差都可以做到毫米级。

工地采用高强螺栓连接有三大优点:一是工人的劳动强度要比焊接小得多,精度有保证,质量更可靠;二是施工快捷、工期短;三是当遇到地震时,螺栓连接的耗能能力比焊接强,更容易实现小震不坏、中震可修、大震不倒。

联系地址:德州市经济技术开发区红都路956号
联系电话:0534-2109518
传真:0534-2109698
邮箱:[email protected]
周经理:18963003578

微信扫一扫
WECHAT SCAN