一、主要参建单位的责任和义务:
建设单位:
将装配式建筑施工图设计文件送审查机构审查。当施工图设计文件有涉及与结构安全、使用功能相关的重要变更时,需送原审查机构重新审图。
根据装配式建筑施工特点,配足安全生产文明施工措施费用。
做好设计、施工总包、监理、构件生产等参建各方在施工进度及工作配合上的协调工作。
建设工程实施监理的,建设单位应委托监理单位对预制混凝土构件的生产环节进行监理,并支付相应的监理费用。
建立相应的工作制度,组织工程参建各方进行预制混凝土构件生产首件验收和现场安装首段验收,验收合格后方可进行批量生产或后续施工。
设计单位:
施工图设计文件应严格执行装配式建筑设计文件编制深度规定。在施工图设计文件中应明确装配式建筑的结构类型、预制装配率、预制构件部位、预制构件种类、预制构件之间和预制构件与主体现浇之间的构造做法等,并编制结构设计说明专篇。对可能存在的重大风险提出专项设计要求。(现在一些预制场做深化设计给设计方认可)
设计单位应会同施工单位充分考虑构件吊点、塔吊和施工机械附墙预埋件、脚手架拉结等因素,方便构件生产及后续施工,并提出施工过程中确保质量安全的措施(包括校核构件堆放场地的承载力)
设计单位应做好现场服务,并指派专人作为现场服务负责人。对有涉及与结构安全、使用功能相关的重要变更时,设计单位应严格把关,并提醒建设单位将修改文件送原审查机构审查。
施工单位:
应依据《现场施工安全生产管理规范》(DGJ08-903-2010),通过安全生产管理体系的外审。
及时编制装配式建筑施工的质量安全专项方案,并按规定履行审批手续。
对于采取新材料、新设备、新工艺的装配式建筑专用的施工操作平台、高处临边作业的防护设施等,其专项方案应按规定通过专家论证。
施工总包单位应针对交叉施工的环节,在分包合同中明确总分包责任界限,以有效落实安全责任;并协调督促各分包单位相互配合,有效落实施工组织设计及专项方案的各项内容。分包单位应服从总包单位的总体施工调度安排,特别是吊装分包单位应加强和其他分包单位的协调配合。
现场从事预制构件吊装的操作工人须持建筑施工高处作业的特殊工种证书。
施工单位应大力推进BIM技术的运用,以达到工序、工艺、设施设备符合质量安全的相关要求。
施工总包单位应根据施工现场构件堆场设置、设备设施安装使用、因吊装造成非连续施工等特点,编制安全生产文明施工措施方案,并严格执行。
监理单位:
监理单位应严格审查施工专项方案的审批和专家论证情况,并根据专项方案编制可操作性的监理实施细则,明确监理的关键环节、关键部位及旁站巡视等要求,关键环节和关键部位旁站需留存影像资料。
预制构件生产实施驻场监理时,监理单位要切实履行相关监理职责,实施原材料验收、检测、隐蔽工程验收和检验批验收,编制驻场监理评估报告。
现场监理日常旁站巡视重点应包括施工单位吊装前的准备工作、吊装过程中的管理人员到岗情况、作业人员的持证上岗情况、吊装监管人员到岗履职情况、临边作业的防护措施及相关辅助设施方案的实施情况等。
预制构件生产单位:
进行预制构件的加工图设计,并须经原施工图设计单位审核确认。
编制预制构件生产方案,明确质量保证措施,按规定履行审批手续后方可实施。
加强预制构件生产过程中的质量控制,并根据规范标准加强原材料、混凝土强度、连接件、构件性能等的检验。(包括隐蔽工程验收、养护、出池强度)
生产单位应对检查合格的预制构件进行标识,标识不全的构件不得出厂。出厂的构件应提供完整的构件质量证明文件。
生产单位应积极配合监理单位开展相关监理工作。

政府相关监督机构:
各级监督机构应根据《上海市建设工程质量安全监督工作手册》要求,针对装配整体式混凝土结构施工的特殊性,有效开展监督工作。重点对涉及工程结构安全、使用功能、环境影响的工程实体部位和施工行为加强抽查与监督。
在工程施工准备阶段应重点抽查方案审批、论证程序;工程施工阶段应重点抽查现场安全防护、负责人带班及作业人员持证上岗情况等,督促各方质量安全责任的落实。
各级监督机构发现在方案编制审批,预制构件堆放、驳运、吊装,现场防护及构件连接、构造防水、防水施工等关键环节,存在质量和安全生产条件缺陷的,应立即责令局部暂缓施工整改,必要时全面停工整改,并对相关责任单位和个人依法进行处理。
二、预制构件质量监理
生产单位应根据审查合格的施工图设计文件进行预制构件的加工图设计,并须经原施工图设计单位审核确认。
预制构件生产方案,要有质量保证措施,要审批通过可生产。
建设单位组织预制构件首件验收合格后,批量生产。
监理对预制构件生产实施驻场监理,对原材料、检测、隐蔽工程验收和检验批验收。

预制构件的标识,无标识不得出厂,同时厂家要提供预制构件完整的质量证明文件。
施工单位应对进入施工现场的每批预制构件全数进行质量验收,并经监理单位抽检合格后方能使用。验收内容:
构件是否在明显部位标明生产单位、构件型号、生产日期和质量验收标识;
构件上的预埋件、吊点、插筋和预留孔洞的规格、位置和数量是否符合设计要求;
构件外观及尺寸偏差是否有影响结构性能和安装、使用功能的严重缺陷等:
施工单位和监理单位同时还须复核预制构件产品质量保证文件,包括吊点的隐蔽验收记录、混凝土强度等相关内容。

三、施工阶段质量监理
1)施工准备阶段
(1)设计单位应当参加建设单位组织的针对生产单位的生产技术交底,以及对施工单位及监理单位进行的设计交底。当构件生产和现场施工有需求时,应及时给予技术支持。
(2) 施工单位应制定涉及质量安全控制措施、工艺技术控制难点和要点、全过程的成品保护措施等内容的专项方案,并通过审核。
专项施工方案:现场构件堆放、构件安装施工、节点连接、防水施工、混凝土现浇施工等内容。
质量控制措施:构件进场检查、吊装、定位校准、节点连接、防水、混凝土现浇、机具设备配置、首件样板验收等方面的要求;
安全控制措施:预制构件堆放、驳运及吊装、高处作业的安全防护、作业辅助设施的搭设、构件安装的临时支撑体系的搭设等方面的要求。
(3) 监理单位应及时编制装配式建筑施工监理细则并通过审核,并对施工单位现场质量、安全生产管理体系建立、管理及施工人员到位情况、施工机械的施工情况、主要工程材料落实情况进行审查。
装配式建筑的监理流程
装配整体式混凝土结构施工主要质量监理流程,包括首次会议专项事先告知,样板检查验收,过程节点抽查,子分部质量专项验收等。

2)预制构件管理
(1)预制构件堆场应符合下列要求:
预制构件应设置专用堆场,并满足总平面布置要求。预制构件堆场的选址应综合考虑垂直运输设备起吊半径、施工便道布置及卸货车辆停靠位置等因素,便于运输和吊装,避免交叉作业。
堆场应硬化平整、整洁无污染、排水良好。构件堆放区应设置隔离围栏,按品种、规格、吊装顺序分别设置堆垛,其他建筑材料、设备不得混合堆放,防止搬运时相互影响造成伤害。
应根据预制构件的类型选择合适的堆放方式及规定堆放层数,同时构件之间应设置可靠的垫块;若使用货架堆置,货架应进行力学计算满足承载力要求。

(2)施工单位应对进入施工现场的每批预制构件全数进行质量验收,并经监理单位抽检合格后方能使用。验收内容包括构件是否在明显部位标明生产单位、构件型号、生产日期和质量验收标识;构件上的预埋件、吊点、插筋和预留孔洞的规格、位置和数量是否符合设计要求;构件外观及尺寸偏差是否有影响结构性能和安装、使用功能的严重缺陷等。施工单位和监理单位同时还须复核预制构件产品质量保证文件,包括吊点的隐蔽验收记录、混凝土强度等相关内容。
3)结构安装
(1)构件吊运
钢丝绳等吊具应根据使用频率,增加检查频次,发现问题立即更换。严禁使用自编的钢丝绳接头及违规的吊具。
起吊大型空间构件或薄壁构件前,应采取避免构件变形或损伤的临时加固措施。
应实施吊装令制度,具备吊装安全生产条件后方可吊装。在吊装作业时,必须配足指挥人员,且严禁吊装区域下方交叉作业,非吊装作业人员应撤离吊装区域。
人员在现场高空作业时必须配戴安全带。

(2)临时固定和校正
构件安装就位后应及时校准,校准后须及时将构件固定牢固,防止变形和位移。
当采用焊接或螺栓连接时,须按设计要求连接,对外露铁件采取防腐和防火措施。

(3)构件连接
采用钢筋套筒灌浆连接施工前,须对灌浆料的强度、微膨胀性、流动度等指标进行检测。在灌浆前每一规格的灌浆套筒接头和灌浆过程中同一规格的每500个接头,应分别进行灌浆套筒连接接头抗拉强度的工艺检验和抽检。(检验方法:按规格制作3个灌浆套筒接头,抗拉强度检验结果应符合Ⅰ级接头要求)。
施工中检查套筒中连接钢筋的位置和长度必须符合设计要求,应并加强全过程质量监控,灌浆施工过程应留存影像资料。

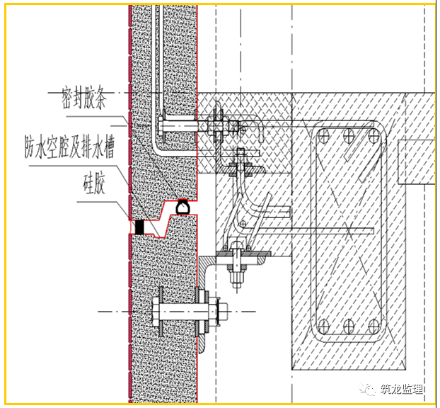
(4)构造防水及防水施工
对进场的外墙板应注意保护其空腔侧壁、立槽、滴水槽以及水平缝的防水台等部位,以免损坏而影响使用功能。
密封防水部位的基层应牢固,表面应平整、密实,不得有蜂窝、麻面、起皮和起砂现象,嵌缝密封材料的基层应干净、干燥。应事先对嵌缝材料的性能、质量和配合比进行检验,嵌缝材料必须与板材牢固粘接,不应有漏嵌和虚粘的现象。
抽查竖缝与水平缝的勾缝,不得将嵌缝材料挤进空腔内。外墙十字缝接头处的塑料条须插到下层外墙板的排水坡上。外墙接缝应进行防水性能抽查,并做好施工记录。发现有渗漏,须对渗漏部位及时进行修补,确保防水作用。

(5)现浇混凝土部分
现浇混凝土浇筑前应清除浮浆、松散骨料和污物,并采取湿润技术措施,预制构件与现浇结构连接处应进行构件表面拉毛或凿毛处理。
立柱模板宜采用工具式的组合模板。根据混凝土量的大小选用合适的输送方式,连接处须一次连续浇筑密实,混凝土强度等性能指标须符合设计规定。并应做好接头和拼缝的混凝土或砂浆的养护。
结构的临时支撑应保证所安装构件处于安全状态,当连接接头达到设计工作状态,并确认结构形成稳定结构体系时,方可拆除临时支撑





四、验收
1)各阶段的验收
(1)现场临时安全防护设施验收要求
现场构件堆场、货架、高处作业专用操作平台、脚手架及吊篮等辅助设施、预制构件安装的临时支撑体系等应经验收通过并挂牌方可投入使用。
(2)预制构件进场验收要求
施工单位应对每批预制构件全数进行进场质量验收,并经监理单位抽检合格方能使用。发现不合格的构件,特别是有存在影响吊装安全的质量问题,应立即退场。
(3)首件制样板验收要求
建设单位应组织设计单位、施工单位、监理单位及预制构件生产单位进行预制混凝土构件生产首件验收,验收合格后方可批量生产。
建设单位应组织设计单位、施工单位、监理单位对首.个施工段预制构件安装后进行验收,验收合格后方可后续施工。
施工单位应在施工现场设置样板区,针对装配式结构中的连接、防水、抗渗、抗震、预制楼梯板等部位做样板。样板中可将各节点部位分解,还原施工中常见问题,将详细施工过程以图片形式与实体样板对照,并说明施工重点。
(4)实体分部工程质量验收要求
在装配式结构施工完成后,由监理单位组织各参建单位对装配式建筑子分部工程的质量和现场的装配率是否达到设计要求进行验收。
工程实体应严格按照《装配式混凝土结构技术规程》JGJ1-2014、《装配整体式混凝土结构施工及质量验收规范》DGJ08-2117-2012等规范标准要求进行验收。规范中未包括的验收项目,建设单位应组织监理、设计、施工等单位制定专项验收要求。涉及安全、节能、环境保护等项目的专项验收要求,建设单位应组织专家论证。
2)工程质保资料验收要求
对装配式建筑质保资料的验收检查内容主要应包括:
专项施工方案及监理细则的审批手续、专家论证意见;
施工所用各种材料、连接件及预制混凝土构件的产品合格证书(预制构件质保书需包括吊点的隐蔽工程验收记录、混凝土强度等相关内容)、性能测试报告、进场验收记录和复试报告;
监理旁站记录,隐蔽验收记录及影像资料;
预制构件安装施工验收记录;钢筋套筒灌浆、浆锚连接施工检验记录;外墙防水施工质量检验记录;
连接构造节点的隐蔽工程检查验收文件;
后浇节点的混凝土或灌浆料浆体强度检测报告;
分项、分部工程验收记录;
装配式结构实体检验记录;
工程重大质量问题的处理方案和验收记录;
使用功能性检测报告:外墙保温、防水等检测报告;
其他质量保证资料。
3)装配整体式结构子分部分析工程划分

装配整体式混凝土结构的门窗工程 、饰面板(砖 )工程的,除应符合本规范的规定 外,尚应符合现行国家标准《建筑装饰装修工程质量验收规范》GB50210的有关 规定 。
装配整体式混凝土结构的节能工程的质量验收,除应符合本规范的规定外尚应符 合现行国家标准《建筑节能工程施工质量验收规范》GB50411或现行上海市地方 标准《建筑节能工程施工质量验收规程》DGJ08-113的有关规 定。
装配整体式混凝土结构中的现浇混凝土施工应符合现行国家标准《混凝土结构工 程施工规范》GB50666-2011的有关规 定。
4)验收资料
在建设单位组织的工程竣工验收报告中应注明装配式建筑性能指标、装配率等验收意见。
施工、设计合同及备案情况。(《上海市建设工程合同备案管 理规定》沪建交〔2012〕947号第二条)
施工图审查合格,深化图原设计确认。(《建设工程质量管理条例》中华人民共和国国务院令第279号第十一条,装配式混凝土结构技术规程JGJ1—2014第3.0.6条)
施工前,检验批和分项划分方案是否经监理单位审核通过。(建筑工程施工质量验收统一标准GB50300-2013第4.0.7条)
施工单位、监理单位应分别建立《建设工程材料采购验收检验使用综合台帐》(简称综合台帐)、《建设工程材料监理监督台帐》(简称监督台帐)(《关于规范本市建设工程材料台帐及质量保证书管理的通知》沪建材质监字[2003]第047号第.一条)
施工方案的内容应包括构件安装及节点施工方案、构件安装的质量管理及安全措施等。
预制构件生产单位应提供构件质量证明文件,以及满足规定的预制构件结构性能检验合格报告及相关文档资料(如钢筋套筒灌浆连接接头的抗拉强度试验报告。
预制构件钢筋连接用套筒产品的质量合格证明文件,其品种、规格、性能等应符合现行国家标准和设计要求.
灌浆要有专项质量保证措施、全过程要有质量监控,48小时内温度不得低于10℃,有施工质量检查记录,且要密实饱满,灌浆料要留置标养试块强度报告及评定记录。每工作班应制作一组且每层不应少于3组40mmx40mmx160mm
预制构件钢筋连接用灌浆料的质量合格证明文件及复试报告,以5t 为一检验批,不足5t 的以同一进场批次为一检验批。
施工前应在现场制作同条件接头试件,套筒灌浆连接接头应检查其有效的型式检验报告,同时按照500 个为一个验收批进行检验和验收,不足500 个也应作为一个验收批,每个验收批均应选取3 个接头做抗拉强度试验。如有1 个试件的抗拉强度不符合要求,应再取6 个试件进行复检。复检中如仍有1 个试件的抗拉强度不符合要求,则该验收批评为不合格。检验方法:检查施工记录、每班试件强度试验报告和隐蔽验收记录
剪力墙底部坐浆材料强度试验报告及评定记录。每工作班应制作一组且每层不应少于3组70.7mmx70.7mmx70.7mm
后浇混凝土强度试验报告,同一配合比的混凝土,每工作班且建筑面积不超过1000m2应制作一组标准养护试件,同一楼层应制作不少于3组标准养护试件
外墙板接缝的防水性能的现场淋水试验报告
当钢筋采用焊接连接、机械连接时应有连接施工记录和平行试件。
装配式结构按混凝土结构子分部验收。
联系地址:德州市经济技术开发区红都路956号
联系电话:0534-2109518
传真:0534-2109698
邮箱:[email protected]
周经理:18963003578

微信扫一扫
WECHAT SCAN