由无锡爱之虹置业有限公司投资、江苏南通二建集团有限公司施工的“五恒”健康科技精装修住宅项目,主要预制混凝土(PC)构件类型包括:预制剪力墙板、预制叠合楼板、预制楼梯板。装配式建筑的预制率大于 30%,预制装配率大于 50%。

建设单位:无锡爱之虹置业有限公司
施工单位:江苏南通二建集团有限公司
监理单位:上海建设工程咨询有限公司
设计单位:无锡市城归设计有限责任公司
PC 构件生产单位:常州杰通装配式建筑有限公司
PC 构件安装单位:苏州旭杰建筑科技股份有限公司

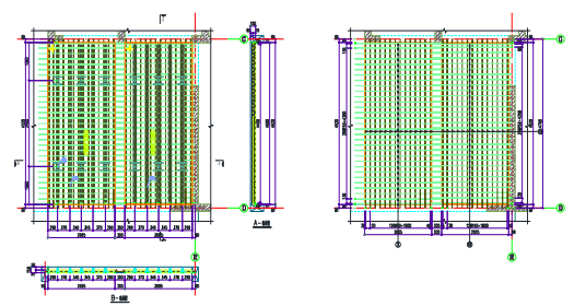
预制率概况
以首批次 6 栋楼举例,预制混凝土(PC)构件类型统计汇总表及构件示意图如下:
(1)预制竖向构件汇总表








(2)预制水平构件汇总表









(3)预制楼梯构件汇总表


现场运输道路及堆场设置基本要求
1. 每栋 PC 构件堆场按楼号面积的 1/3 准备;初次选堆场应避免对地库的影响及加固、及便于安装时的塔司视线与吊装用时小化;堆场基底土层应硬化、四周设置排水明沟。
2. PC 构件行车道路,转弯半径不小于 15m,行车路宽不小于 4m,通道环通,道路两侧设置定型化格栅,挂标识,禁止越线行驶。卸车时,宜车头进地库顶板,避免整车上地库对顶板的影响;按规格、品种、使用部位、吊装顺序分别设置存放场地;存放场地设置在吊装设备的有效起重范围内,且在堆垛之间设置通道;对侧向刚度差、重心较高、支承面较窄的构件,应立放就位,除两端垫垫木外,还应搭设支架或用支撑将其临时固定,支撑件本身应坚固,支撑后不得左右摆动和松动。构件的存放架应具有足够的抗倾覆性能。
3. 构件应按型号、吊装顺序依次堆放,先吊装的构件应堆放在外侧或上层,并将有编号或有标志的一面朝向通道一侧。堆放位置应尽可能在安装起重机械回转半径范围内,并考虑到吊装方向,避免吊装时转向和再次搬运。
4. 预制叠合楼板堆放层数不宜大于 6 层(具体按设计及相关要求)。叠合板以 4 个或更多支点码放。用木方作垫块,保证板面不受破坏。构件堆放要保持平稳,底部应放置垫木。成堆堆放的构件应以垫木隔开,垫木厚度应高于吊环高度,构件之间的垫木要在同一条垂直线上,且厚度要相等。构件堆放应有一定的挂钩绑扎间距,堆放时,相邻构件之间的间距不小于 200mm。
施工场地平面布置安排
1
基础及 5 层以下时场地平面布置
因各主楼全部坐落于地库上,主楼四周均有沉降后浇带。在满足销售节点目标的情况下,同步或尽早施工主楼边上的纯地库。

2
主体 5 层以上时场地平面布置
及时进行地下车库基坑回填土,贯通施工道路。

3
PC 构件堆放场地
PC 构件由运输车辆卸载后堆放于每栋楼的 PC 专用堆场,并按照指定顺序进行归类堆放,提前规划施工堆场并用明黄色油漆标识清晰,道路两侧设置定型化格栅,挂标识。禁止越线行驶。

4
装配式构件的堆放
每个 PC 专用堆场由 4 个区域组成,分别为周材及耗材货架、叠合板堆放区、楼梯堆放区域、PC 墙板堆放区域。
(1)预制剪力墙的堆放
其中 PC 墙板采用竖放,使用 6#、10#槽钢焊接而成的专用支架,支架由 PC 厂家提供,墙板搁支点应设在墙板底部两端处,堆放场地须平整、结实。PC 板竖向放入专用支架后两侧用木楔顶紧。

(2)预制叠合板的堆放
预制叠合楼板堆放层数不宜大于 6 层,叠合板以 4 个或更多支点码放保持平稳。垫木要在同一条垂直线上,且厚度要相等。构件堆放应有一定的挂钩绑扎间距,堆放时,相邻构件之间的间距不小于 500mm。

(3)预制楼梯板的堆放
楼梯堆放梯段应水平分层、分型号(左、右)码垛,每垛不超过 3 块,底层下面一根垫木通长,层与层之间应垫平、垫实,各层垫木在一条垂直线上,支点一般为吊装孔位置。

(4)周材及耗材货架的堆放
PC 周转材及耗材专用货柜由角钢 L100X10 焊接而成,水平向铺放木板隔离。
塔吊型号的选择
1
各构件重量汇总
1. 叠合板单块重量:≤2T
2. 楼梯板单块重量:≤2T
3. 剪力墙单块重量:≤3.97T
2
塔吊选型中的特别注意点
1. 塔吊与主楼的距离,需保证安装时上得去,拆卸时驾驶室、塔机套框、前后大臂等对脚手架、凸出建筑物、施工电梯的影响,顺利拆卸。
2. 塔吊基础的地基承载力需满足塔吊机械使用要求。
3. 塔吊基础如设置塔基桩时,需注意与主楼及地库工程桩的施工距离。
4. 塔吊基础如先于周边施工的话,需注意与周边集水坑、井等的开挖安全距离。
5. 较大构件与塔吊位置的距离,需分别计算卸车点、堆场点、安装点的较大力矩,计算时需不要遗漏吊钩、吊具等工具重量。



6. 注意群塔施工及后开发楼号的塔机有效臂长,是否碰先开区建筑物及脚手架、是否碰周围已有建筑物;塔机覆盖主楼不能有交汇盲区。


7. 塔机起重性能中注意起吊 2 倍率或 4 倍率的选择。
8. 塔机附墙点主体结构的安全性复核。
9. 装配式建筑选用的塔机吊装安全系数,国家及省市目前均要求是 1.5 倍,如按 1.5 倍来选机的话,富余量对塔机的选型有较大的浪费,机械租赁费可能将高出成倍。需提前咨询当地安监部门及专家意见,在满足当地安监验收及施工方案论证的前提下,合理确定塔机的吊装安全系数。

总结
1. 建筑业的发展趋势规模越来越向的大型化、节能型、工业化转型,装配式建筑越来越多,塔吊租赁单位也更多的转型至提供大规格塔机,塔吊型号的合理选择对施工的吊运周转速度、施工工期的保障、施工的安全性均比较重要。
2. 装配式建筑施工群塔作业成常态。平头塔机在群塔作业及防碰撞具有—定优势:臂长可以截短至 30 米,附着间距大附着少,附着以上悬高大,可以减少附着布置少设临时附墙。
3. 选择优质设备提供商,设备的品质、维保作业、施工人员等更能保障项目的安全运行。
4. 所有索具吊具必须要有合格证、检验报告才能投入使用。
5. 司机、指挥和起重人员需经过培训经有关部门考核合格后,方能持证上岗作业,也更能保障施工安全。
联系地址:德州市经济技术开发区红都路956号
联系电话:0534-2109518
传真:0534-2109698
邮箱:[email protected]
周经理:18963003578

微信扫一扫
WECHAT SCAN