装配式混凝土结构转换层施工过程中,预埋钢筋的定位及预埋钢筋的长度与转换层预制墙体的施工稳定性息息相关,常见预埋钢筋定位措施有钢板开孔定位、方管定位及角钢定位,本文采用钢板开孔定位方法来展示转换层预埋钢筋的施工工艺节点。
01
转换层施工技术交底
根据深化设计图纸,项目部编制转换层预埋插筋专项施工方案,明确采用钢板开孔预埋插筋定位法,项目部技术负责人对施工班组进行专项施工交底,进一步明确定位钢板的制作、定位附加钢筋的固定及预埋插筋长度预留等重要控制节点。


02
钢板定位及固定
(1)根据PC深化设计图纸确认预埋插筋的位置及固定钢板的尺寸规格,并批量预制加工定位钢板,加工过程严格按照深化的加工图纸尺寸下料,成品如图所示。


(2)根据PC深化设计图纸现场定位钢板具体位置,钢板首孔与叠合板边缘相距55cm,定位后的钢板进行钢板开孔位置二次定位,附加钢筋与叠合板桁架筋进行绑扎固定,定位钢筋与附加筋进行绑扎及点焊固定。

(3)在定位钢板两侧间隔使用连接钢筋与定位钢筋焊接固定,连接钢筋另一端与定位钢板焊接,定位钢板底面比混凝土浇筑面高50mm为宜,本工程叠合板上现浇70mm砼,故定位钢板高度设置为120mm。



03
定位插筋
通过定位钢板钢筋开孔位置插入预留钢筋,后插钢筋与现浇层纵筋绑扎连接,并与定位钢筋进行绑扎固定,严禁后插预留纵筋与其他钢筋点焊固定,竖向预埋插筋连接完成后进行现浇墙合模。


04
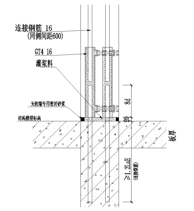
预埋插筋长度复核
根据PC深化设计图纸,计算叠合板面层以下钢筋插入长度为645mm,本工程统一预埋960mm;计算叠合板面层以上钢筋预埋长度为218mm,本工程统一预埋220mm。



05
预埋插筋及锚固钢筋轴线复核
插筋工作完成且钢筋工程验收合格后,浇筑楼层混凝土,楼层混凝土浇筑过程中,振捣棒尽量避免直接与定位钢板接触,减少对预埋插筋的偏位扰动,最后拆除钢板后对锚固钢筋进行轴线复核。

联系地址:德州市经济技术开发区红都路956号
联系电话:0534-2109518
传真:0534-2109698
邮箱:[email protected]
周经理:18963003578

微信扫一扫
WECHAT SCAN